Генеральні плани промислових підприємств: що потрібно знати?

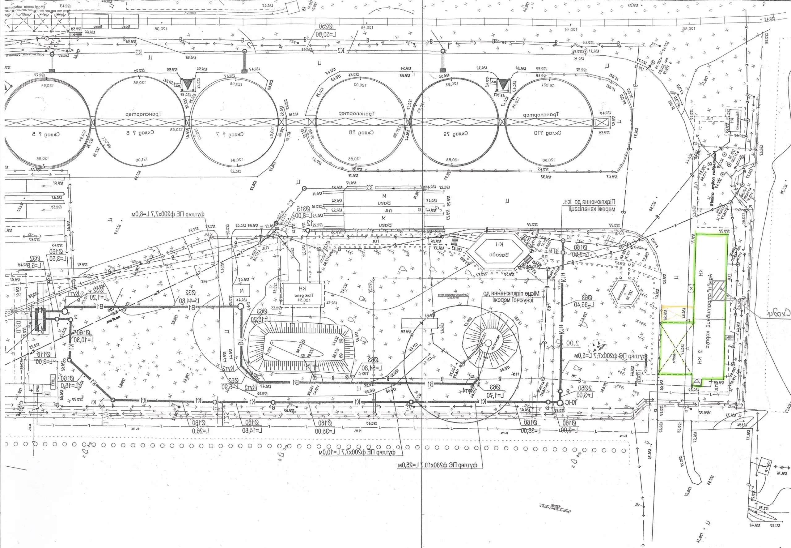
Будівництво промислового підприємства — складне завдання, успішне вирішення якого багато в чому залежить від якості розроблюваної документації. Тому вже на ранніх етапах необхідно приділити особливу увагу всім складовим проекту, а зокрема генеральному плану промислового підприємства. Цей документ дозволяє правильно і з урахуванням будівельних норм і правил провести зонування території:
- розташування передзаводської (наприклад, їдальня, прохідна) і виробничої (безпосередньо цеху, допоміжних споруд) зон;
- пролягання рейкових та безрейкових шляхів;
- місця прокладки мережі інженерних комунікацій (електрика, газ, вода, каналізація і т.п.).
Якісно складений генплан виробничого об’єкта допомагає не тільки раціонально використовувати території, але й забезпечує економію коштів та ресурсів. Подібна економія досягається шляхом правильного компонування об’єктів зі схожою функціональністю та зменшення протяжності комунікацій між ними (залізничні та автодороги, ЛЕП, інше). Також генплан передбачає детальне графічне зображення всіх споруд, починаючи будівлею заводоуправління і закінчуючи пожежними гідрантами.




