Що таке проект дорожнього руху?

Часто буває так, що споруда, розташована в самому центрі міста, не популярна серед підприємців. У більшості випадків подібне відбувається через повну відсутність під’їзних шляхів для автотранспорту. Тому розробка проекту організації дорожнього руху — пріоритетне завдання для кожного забудовника, особливо якщо мова йде про комерційні об’єкти. Правильно складений проект дозволяє підвищити безпеку учасників дорожнього руху, а також дає можливість створити зручну логістичну мережу, яка забезпечить успіх майбутньої споруди.
Потрібно відзначити, що проект організації дорожнього руху складається не тільки на період будівництва будівель та споруд. Подібна технічна документація розробляється при:
- проведенні відновлювальних робіт на старій дорозі;
- прокладанню нових та ремонту наявних мереж інженерних комунікацій;
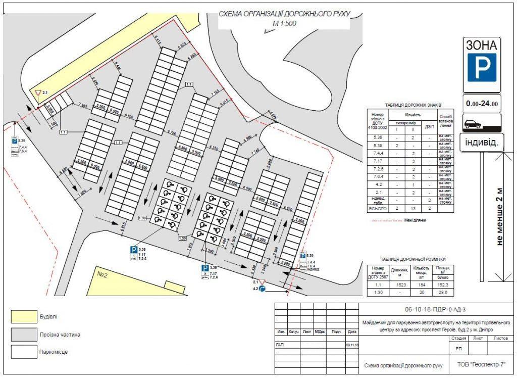
- будівництві паркінгів і автостоянок.
Важливо пам’ятати, що незалежно від типу об’єкта будь-який проект має бути погоджений і затверджений місцевими органами влади до початку будівельних заходів.
З чого складається проект дорожнього руху?
Оскільки проект організації руху являє собою план території проїжджої частини, який адаптовано під певні дорожні обставини, цей документ містить у собі:
- дорожні знаки;
- горизонтальну і вертикальну розмітку;
- світлофори;
- пішохідні переходи;
- бар’єри й огорожі.
Крім матеріалів графічного характеру також до проекту додається текстовий документ — пояснювальна записка.
Які документи потрібні для розробки?
Комплектність паперів, які будуть потрібні для складання проекту, залежить від специфіки кожного випадку. Якщо техдокумент оформляється на період будівництва житлових і нежитлових будівель, будуть потрібні такі документи, як:
- генеральний план;
- план облаштування території;
- ситуаційний план із нанесеними межами земельної ділянки;
- поверховий план споруди;
- проект організації будівництва.
Для проекту дорожнього руху з метою прокладки інженерних комунікацій необхідно надати:
- топографічний план місцевості в масштабі 1:500;
- генеральний план;
- проект організації будівництва мережі.
Наведений список документів є орієнтовним, тому більш детально про перелік необхідних документів краще дізнатися у співробітників компанії, яка спеціалізується на складанні проектів.




